为您解读防火窗在烧检时窗框超温原因及应对措施
发布时间:2019-09-29 点击数:2075
按照防火窗国家标准 GB 16809-2008《防火窗》的相关规定:隔热性防火窗的耐火性能按GB/T 12513 关于隔热性镶玻璃构件判定准则的规定进行判定,即窗框上任一点最高温度超过该点初始温度180℃时,则认为试件失去耐火隔热性。相比防火门,防火窗的这一要求严格了很多。

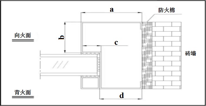
试验中,防火窗一般安装在砖墙或混凝土墙框架上,窗框与框架之间用防火棉封堵。窗框各部分的尺寸:a、b、c、d和窗框结构对窗框的隔热性都有很大影响。

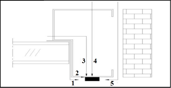
耐火试验时,热量从向火面传导至背火面测温点,可分为5个路径。路径1:通过玻璃(或窗扇)与窗框的缝隙传导。路径2:通过窗框本身的钢板传导。路径3和路径4:通过窗框填充物(一般为水泥砂浆和珍珠岩填充物)传导。路径5:通过防火棉和窗框之间的缝隙传导。因此,热量的传导除了窗框材料与填充物材料本身相关外,还与缝隙和结构相关。窗框超温的几个应对措施:
1、适当减少b尺寸。这样测温点距离向火面的距离就加大很多,路径1、路径2、路径3的传导距离也会增大。
2、适当增加c尺寸。这样可以设置更多密封条,路径1、路径2、路径3的传导距离也会增大。
3、增加隔热孔和物理隔断。可以减少路径3传导的热量。

4、设置附加隔热层并减少d尺寸。这样可以减少路径4和路径5的传导热量。

上一篇:了解三步法则,轻松搞定耐火窗采购





电话咨询
短信咨询
首页
产品中心